215682 MDL
(12240.74$, 10633.00€)

Уточнять о наличии
(+373) 79-288-788

Код товара: 9313

В корзину
  • Бесплатная доставка  по Кишинёву
Описание
Под Заказ

Описание

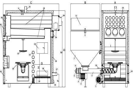
Схема котла

Дополнительные опции

Технические Характеристики

Heiztechnik Q Max Eko Duo 90 кВт – автоматический котел для сжигания угля с дополнительной резервной топкой. Оснащен шнеком для автоматической подачи топлива, бункером, и ретортной горелкой для сжигания угля.    Топка котла разделена стенкой, выполненной из водяных труб на две части. Первая оснащена горелкой с автоматическим шнеком и автоматикой HT-tronic®750, которая управляет работой котла, а также обслуживает систему отопления и водоснабжения. Вторая топка расположена позади котла и содержит чугунные колосники для топлива, а также независимый вентилятор, управление которого осуществляется с помощью автоматики HT-tronic®100. Две топки обслуживаются двумя независимыми регуляторами, что позволяет легкое использование каждой топки отдельно или одновременно.    На заказ, котел может комплектоваться системой золоудаления автоматической топки и системой пневматической очистки теплообменника. Стандарт выполнения: бункер с правой стороны котла, резервная топка слева.
1-вентилятор, 2-шнек, 3-конденсатор, 4-двигатель шнека, 5-шпонка, 6-моторедуктор, 7-бункер топлива, 8-крышка бункера, 9-гильза датчика температуры, 10-теплообменник, 11-водная преграда, 12-дефлектор, 13-датчик температуры шнека, 14-заглушка шнека, 15-горелка, 16-патрубок слива, 17-патрубок возврата, 18-изоляция, 19-чистка, 20-дымоход, 21-патрубок подачи, 22-рушта, 23-двери для чистки, 24-двери загрузки, 25-двери для чистки пепла, 26-изоляция дверей, 27-шамотка, 28-вентилятор ручной топки
Горелка Duo для сжигания угля, угля с 10% содержанием пыли, пеллет из подсолнечника.
Модуль клапана M-Z2.
Модуль буфера M-BC – модуль буфера и циркуляции ГВС.
HT-Tronic Rooms – панель удаленного управления с термостатом.
HT-Tronic Connect – модуль Internet.
Модуль OPS Eko Lambda – модуль оптимизации процесса сжигания Лямбда.
Система пожаротушения.
Система пневматической очистки теплообменника.
Система автоматической загрузки топлива.
Бункер с левой стороны котла.
Категория:  Котлы с автоподачей Номинальная мощность, кВт 90
Диапазон мощности, кВт 30 - 90
Топливо уголь, уголь с 10% содержанием пыли
Топливо резервной топки дерево, брикеты, уголь
Минимальная тяга дымохода, Па 26
Макс. температура работы, °С 85
Объем воды, л 370
Подключение инсталляции G 2"
Объем бункера, дм³ 100
Ширина бункера, мм 870
Количество топок, шт 2
Диаметр дымохода, мм 200
Высота корпуса котла, мм 1800
Ширина корпуса котла, мм 1660
Глубина корпуса котла, мм 1400
Высота оси дымохода, мм 1540
Высота оси возвращения, мм 350
Ширина комплекта, мм 1630
Вес, кг 1170
Производитель Heiztechnik
Страна-производитель Польша.
Характеристики
Тип котла Твердотопливный
Площадь обогрева 900 м²
Мощность 90 кВт
КПД 92 %
Подача топлива Автоматическая подача
Присоединение к инсталляции G2 "
Температура ЦO (max) 85 °C
Объём воды 370 л
Тяга дымохода (минимум) 26 Па
Давление мин.-мвкс. 2 Бар
Диаметр дымохода 200 мм
Объём бункера 1 дм3
Тип топлива уголь, уголь с 10% содержанием пыли+топливо резервной топки - дерево брикеты уголь
Габариты ШхГхВ 1400*1660*1800 мм
Вес котла 1170 кг
Родина бренда Польша
Бренд Heiztechnik
Производство Польша
Гарантия на котел/автоматику 48 / 24 мес.
Серия Q Max Eko Duo
Показать все характеристики
Характеристики могут меняться производителем без уведомления
Каталог товаров
Статьи
Выбираем насос
Выбираем насос
Правильно выбрать насос, дело совсем не простое как может показаться на первый взгляд.
Отопление
Отопление
Мы проектируем и монтируем только качественные системы отопления «под ключ»
Полезная информация при выборе кондиционера.
Полезная информация при выборе кондиционера.
Практически большинство клиентов при покупке кондиционера задаются одними и теми же вопросами:
Водяные теплые полы от «Termoformat»
Водяные теплые полы от «Termoformat»
Termoformat Водяные теплые полы