205917 MDL
(11880.92$, 10236.00€)

Уточнять о наличии
(+373) 79-288-788

Код товара: 9158

В корзину
  • Бесплатная доставка  по Кишинёву
Описание
Под Заказ

Описание

Преимущества

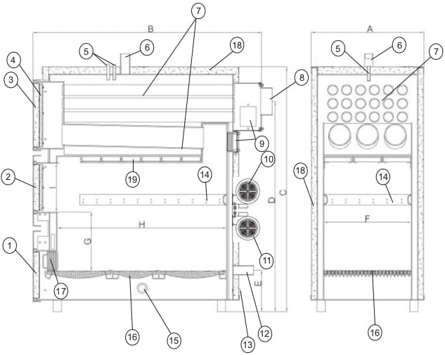
Схема котла

Толщина стали 5-6мм
Heiztechnik Q MAX Plus 120 кВт – стальной котел для сжигания угля и древесины с автоматикой и вентилятором. Благодаря трехтяговому трубчатому теплообменнику, достигнута высокая степень обмена тепла с минимальной склонностью к конденсации газов. Объемная камера позволяет загружать большое количество топлива, что значительно повышает время работы на одной загрузке. Сжигание происходит на чугунных колосниках, которые улучшают наполнение воздухом топки и качество горения. С целью улучшения качества сжигания, топку укомплектовано системой сопел вторичного воздуха, что вызывает полное дожигание газов.    Котел комплектуется автоматикой HT-tronic®250, которая руководит процессом горения с помощью вентиляторов, работающих с модулированной мощностью, а также системой отопления и водоснабжения. Вентиляторы независимо подают воздух для процесса сжигания. Один вентилятор поставляет первичный воздух под чугунные колосники, второй подает вторичный воздух в верхнюю часть топки, обеспечивая полноту сгорания топлива. Стальной экран, размещенный под топкой, выполняет роль дефлектора.
 Комплектуется регулятором HT-TRONIC 250.  3 года гарантии.  
Горизонтальный теплообменник Heiztechnik с высокой эффективностью.  
Высокий КПД благодаря эффективному процессу сжигания и полному отбору тепла.  
Объемная топка котла, которая вмещает большое количество топлива.  
Вторичная система дожигания газов.
 Теплообменник изготовлен из котловой стали.
 Модулированная работа котла.  
Чугунные колосники.
1-двери для пепла, 2-двери загрузки, 3-двери для чистки, 4-изоляция дверей, 5-гильза датчика температуры, 6-подающий трубопровод, 7-теплообменник, 8-дымоход, 9-ревизионная чистка, 10-вентилятор вторичного воздуха, 11-вентилятор первичного воздуха, 12-обратный трубопровод, 13-патрубок слива, 14-отверстия вторичного воздуха, 15-отверстие первичного воздуха, 16-чугунные колосники, 17-жароотбивная плита, 18-изоляция, 19-огнезащитные плиты.
Характеристики
Тип котла Твердотопливный
Площадь обогрева 1200 м²
Мощность 120 кВт
КПД 85 %
Подача топлива Ручная
Присоединение к инсталляции G 2 "
Объём топки 400 дм3
Ширина засыпного отверстия 500 мм
Высота засыпного отверстия 640 мм
Температура ЦO (max) 85 °C
Объём воды 500 л
Тяга дымохода (минимум) 32 Па
Давление мин.-мвкс. 2 Бар
Диаметр дымохода 200 мм
Тип топлива Дрова, Уголь, Брикеты
Габариты ШхГхВ 840*1700*1800 мм
Вес котла 1400 кг
Родина бренда Польша
Бренд Heiztechnik
Производство Польша
Гарантия на котел/автоматику 48 / 24 мес.
Серия Q Max Plus
Показать все характеристики
Характеристики могут меняться производителем без уведомления
Каталог товаров
Просмотренные
Статьи
Выбираем насос
Выбираем насос
Правильно выбрать насос, дело совсем не простое как может показаться на первый взгляд.
Отопление
Отопление
Мы проектируем и монтируем только качественные системы отопления «под ключ»
Полезная информация при выборе кондиционера.
Полезная информация при выборе кондиционера.
Практически большинство клиентов при покупке кондиционера задаются одними и теми же вопросами:
Водяные теплые полы от «Termoformat»
Водяные теплые полы от «Termoformat»
Termoformat Водяные теплые полы